





Quartier Wohnpark a.d. Havel
Wohnunsneubau Zeppelinstrasse 126, Potsdam
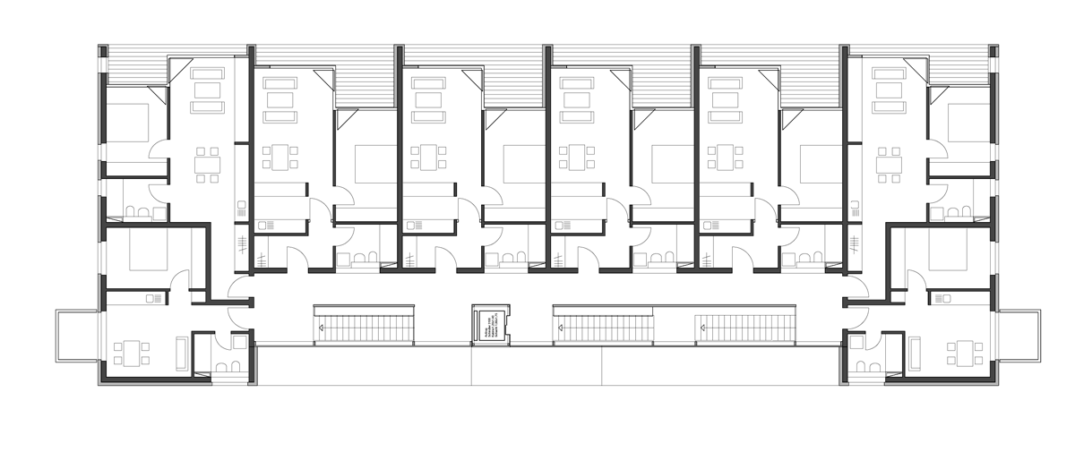
Das Wohnhaus befindet sich in unmittelbarer Nachbarschaft zur Villa Ingelheim, an der stark befahrenen Zeppelinstraße. Die moderne Bauform schließt den Straßenraum und korrespondiert mit der gegenüberliegenden Wohnzeile. Eine großzügige Eingangshalle sorgt für eine angemessene Erschließung des Achtspänners. Eine eingeschnittene Loggia sorgt für einen komfortablen privaten Außenraum. Dadurch entsteht trotz der optimierten Wohnungsgröße ein großzügiges Wohngefühl mit wunderbarer Aussicht. Es sind 24 barrierefreie und seniorenfreundliche Wohnungen als 1,5 und 2 Raum Wohnungen entstanden, die bereits vor der Fertigstellung vermietet waren. Das Gebäude wurde als KfW 70 gefördertes Projekt geplant und realisiert.
Auftraggeber: Unternehmensgruppe Semmelhack
Umfang: 24 Wohneinheiten mit 1.330 m² HNF, Baukosten 2,25 Mio €
Leistungsphasen: 1-5
Ausführung: 2007 – 2008

