


Neubau Verbinder Rathaus Falkensee
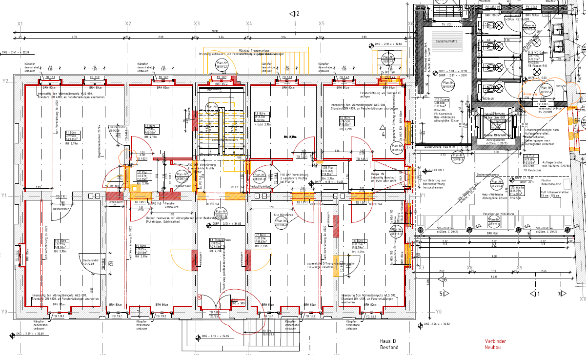
Neubau Verbinderbauwerk und Modernisierung Haus D
Der unter Denkmalschutz stehende Gebäudeteil D wurde im Rahmen der Modernisierung komplett entkernt. Zwischen dem Altbau und dem Rathaus werden mit dem Neubau eines Verbindungsbauwerk, die Verwaltungsbereiche zusammengeschlossen.
Auftraggeber: Arge, Köber Plan
Umfang: Modernisierung Haus D, Neubau Verbinderbauwerk, 1,5 Mio.€ brutto
Leistungsphasen: LP 8
Ausführung: 2016 - 2017

