
NALEPASTRASSE
WOHNUNGSNEUBAU MIT 58 WOHNUNGEN
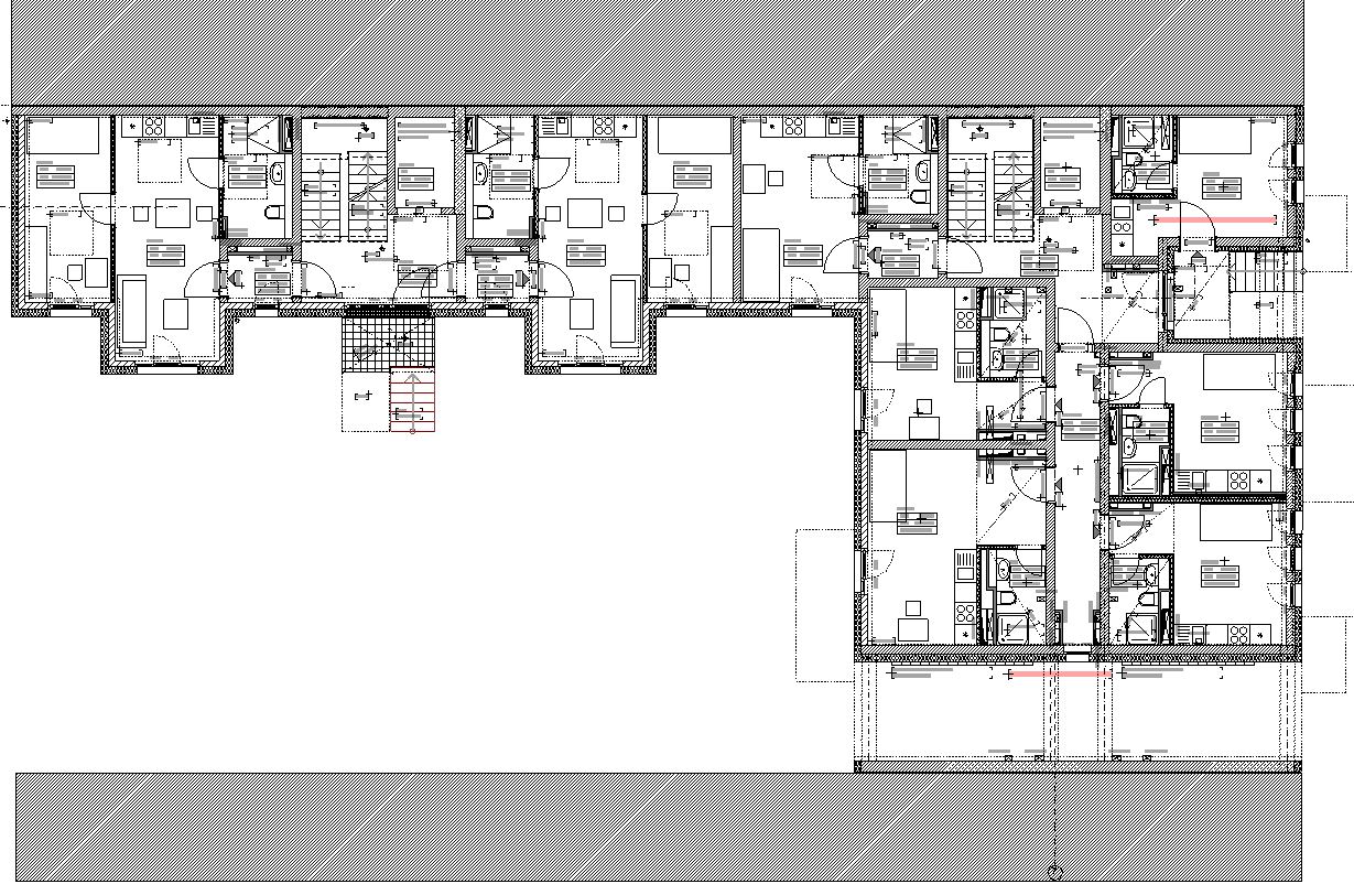
Bau eines Wohnhauses in dem Ortsteil Oberschönewalde in Berlin. Das Wohnhaus liegt nicht weit von der Spree entfernt und bietet dadurch eine gute Ortslage. Das Gebäude ist voll unterkellert und verfügt über sechs Vollgeschosse. Die Vollgeschosse umfassen insgesamt 58 Wohnungen, die zum Teil auch als barrierefreie Wohnungen ausgeführt wurden. Im Untergeschoss befinden sich Abstellräume für alle Wohnparteien. Die Besonderheit an diesem Bauwerk, ist die Blockrandbebauung. Dies beschreibt die beidseitige Bebauung an Brandwänden.
Auftraggeber: NLP Wohnimmobilien GmbH
Umfang: 1.500qm WF; 4.4 mio. € brutto, KG 300/400
Leistungsphasen: 3-8
Ausführung: 2020 - 2022

