



LEIPZIGER STRASSE
NEUBAU EINES MITARBEITERBEREICHES
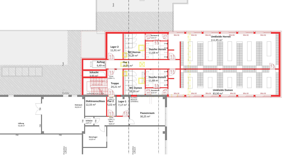
Zur Erweiterung der Mitarbeiterbereiche entsteht hinter dem Café ein Neubau mit einem Aufenthaltsbereich, Umkleiden und Büros. Der Neubau soll neben den funktionalen Anforderungen mit den Baukonstruktionen auch die neuen Leitlinien des BioBackhauses für Nachhaltigkeit erfüllen. Der Energiestandard erfüllt den eines Niedrigenergiehauses und die Beheizung erfolgt über die Abwärme aus der Produktion. Gestalterisch bildet die Lamellenstruktur das Gegenüber zu der bereits neu entstandenen Lamellenfassade der Verwaltung.
Auftraggeber: BioBackHaus Leib GmbH
Umfang: 1.200 m² NF, 6.500 qm BGF,
Baukosten 2.950.000 € brutto KG 300/400
Leistungsphasen: 1-8
Ausführung: 2021 – 2022

