



Greifswalder Strasse
Modernisierung und Aufstockung
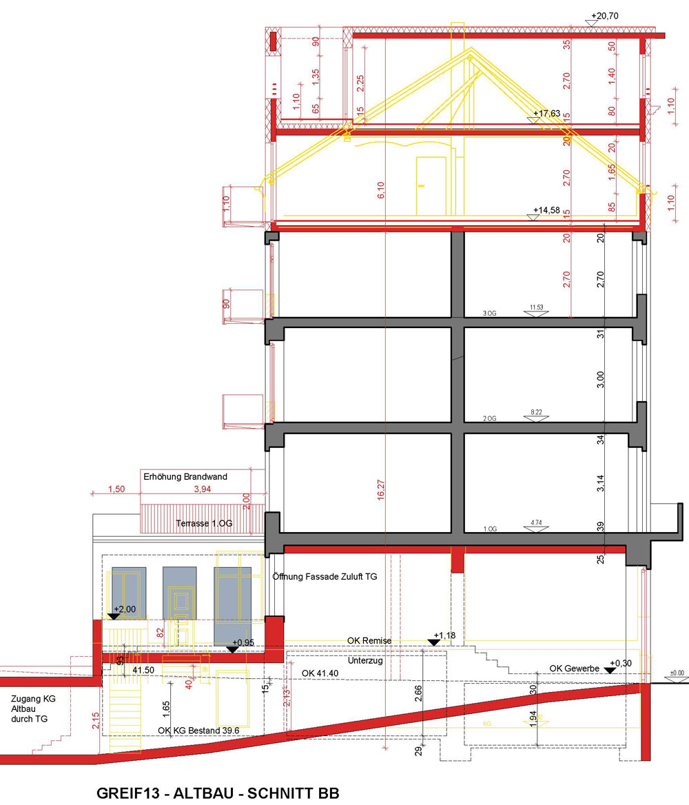
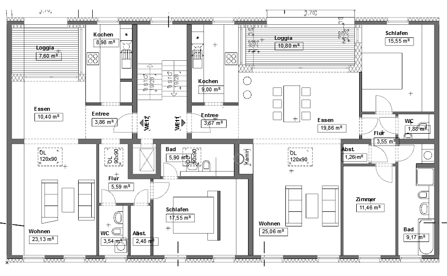
Am Auftakt der Greifswalder Straße wurde der bestehende Altbau, eine typische Berliner Zeilenbebauung aus der Gründerzeit um zwei Geschosse aufgestockt und komplett modernisiert. Das Gebäude liegt im Bereich des Ensembledenkmals Greifswalder Straße. Die Sanierung wurde in enger Abstimmung mit der Denkmalpflege und Stadtplanung Berlin Pankow geplant und umgesetzt. Zur Errichtung und Erschließung des im Hof entstehenden Neubaus mit Tiefgarage wurde zudem eine LKW taugliche Baustellenzufahrt und daraus abschließend eine Tiefgaragenzufahrt in den Altbau eingefügt. Es entstanden je Geschoss 2 bzw. 3 moderne und großzügige Wohnungen mit hofseitigen Balkonen und Dachterrassen. Ein Aufzug wurde durch den Altbau im Treppenhaus eingefügt. Das Gebäude wurde barrierefrei modernisiert: schwellenlose Zugänge, Aufzug auf Hauptgeschoss, und bodengleiche Duschen. Ein Gas- BHKW versorgt den Altbau und den Neubau mit Wärme. Alle Dächer wurden als Retentionsdächer ausgeführt.
Auftraggeber: GbR Greifswalder Straße 13
Umfang: 13 WE und Gewerbe, 1.260 m2 WF, Baukosten 1,8 Mio €
Leistungsphasen: 1-9
Ausführung: 2017 – 2020

