

AM FORTSACKER
Sanierung einer Sporthalle
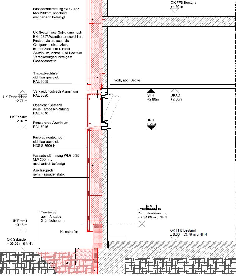
Sanierung einer Doppelsporthalle, der Heinrich-Böll-Oberschule in Berlin Spandau. Im Umfang der Sanierung steht die Erneuerung und Modernisierung der Fassade, sowie die Erneuerung der Innenbereiche der Hallen (Sportböden, Prallwände, Nebenräume) einhergehend mit einer Schadstoffsanierung. Die Sanierung und der Umbau erfolgt in Kooperation mit Marina Stankovic Architekten, Berlin.
Auftraggeber: Bezirksamt Spandau von Berlin
Umfang: Sporthalle, 1609 qm BGF, 2,8 Mio. € brutto
Leistungsphasen: LP 8 in Kooperation mit Stankovic Architekten (LP1-7)
Ausführung: 2020 – 2021

